岩本町
レンタルオフィス

iwamotocho rental office
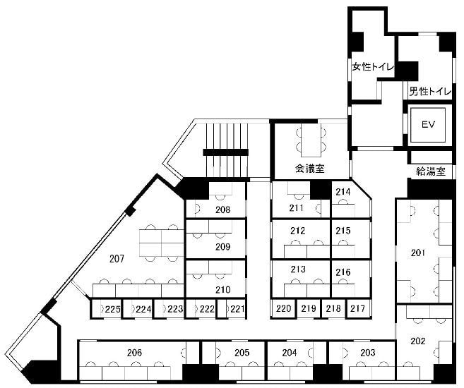
デスクとイスは標準人数分となります。
部屋 人数
標準/最大
賃料 入居日 
201 11 3/6 110,000 5月中旬以降/内覧可/先行契約可
202 8 2/4    
203 6 1/3    
204 4 1/3    
205 5 1/3 75,000  即/内覧可
206 9 2/5    
207 14 4/8    
208 4 1/2    
209 4 1/2 60,000  9月以降/内覧可/先行契約可
210 4 1/2    
211 4 1/2    
212 4 1/2    
213 4 1/2    
214 3 1    
215 3 1 52,000  即/内覧可
216 3 1    
217 2 1    
218 2 1 34,000  即/内覧可
219 2 1    
220 2 1    
221 2 1    
222 2 1    
223 2 1    
224 2 1    
225 2 1    
水道光熱費:毎月上記賃料の16.5%

■設備
完全個室〇
部屋移動〇
法人登記〇
タブレット受付〇
会議室〇
専用ポスト〇
ネット回線〇
電話設置〇
防犯カメラ〇
電子錠〇
机イス〇
複合機〇
冷蔵庫〇
シャワー×
バルコニー〇
男女別トイレ〇
24時間使用 〇
駐車場(別途契約)×

■契約金
月額利用料の約5~6ヶ月分
内訳
・事務手数料:月額利用料の1ヶ月分
・前払清掃費:月額利用料の1ヶ月分
・賃貸保証料:月額利用料の1ヶ月分
・前払賃料等:2~3ヶ月(日割り)
 
■オプション
白黒印刷:11円/枚
カラー印刷:22円/枚
03電話:月額3,300円
電話代行:月額7,700円
WebFAX:月額5,500円

■契約形態
賃貸借契約
※当社指定保証会社へご加入頂きます。

■契約期間
1年(再契約可)

■最低契約期間
6ヶ月
※6ヶ月未満の短期契約は要相談

岩本町

東京都千代田区神田須田町2-6-1
坂下ビル2階

都営新宿線『岩本町駅』徒歩2分
銀座線『神田駅』徒歩4分
山手線『神田駅』徒歩5分
山手線『秋葉原駅』徒歩5分
丸ノ内線『淡路町駅』徒歩7分

Q.レンタルオフィスの特徴を教えてください。
当施設は少人数での創業期、支店開設、セカンドオフィスに利用に最適です。

特徴1 完全個室
全部屋完全個室となります。
プライバシー、セキュリティーが確保されている鍵付オフィスです。
 
特徴2 安心の明朗会計
年会費、更新料はありません。
ご契約後は月額利用料以外の追加料金は発生しません。
 
特徴3 無料サービス
会議室・インターネット設備を無料にて提供しています。
※物件により会議室設置の有無が異なります。
 
特徴4 部屋移動可
都内各所に1~10名まで対応可能なオフィスを幅広く取り揃えております。
事業プランに合わせて部屋を移動することができます。

Q.レンタルオフィスを借りるメリットは?
一番のメリットはコストパフォーマンスです。
通常オフィスを借りる際は賃貸契約金の他、インフラ工事に多大な時間や費用を要します。
レンタルオフィスではインターネット環境が既に用意され、電気、ガス、水道等各種基本料が月額利用料に含まれているため、
経費を抑えたい創業期や新規営業所等のスタートアップにオススメです。
空間やオフィス設備を共有することにより通常の賃貸物件より格安での提供が可能となります。

Q.見学はできますか?
はい。随時予約を受け付けています。
内覧時間は平日10時00分~20時00時
土日祝はご希望に添えない場合があります。
希望日時は複数候補をいただけると調整が付きやすくなります。
 
Q.他の利用者の方はどんな方ですか?
創業間もない起業家、少人数の会社、地方企業の東京支社、個人事業者、男女問わず20代~60代と幅広い層の方にご利用いただいております。

Q.名刺や封筒に住所を記載してもいいですか?
はい。
契約終了後は各自にて住所変更をお願いします。

Q.契約時に必要なものを教えてください。

-個人契約-
・実印印
・口座振替用銀行届出印 ※ネット銀行の場合は不要
・身分証の写し
・連帯保証人印鑑証明書
※審査内容により別途提出をお願いする場合があります。
 
-法人契約-
・実印印
・口座振替用銀行届出印 ※ネット銀行の場合は不要
・法人登記簿謄本(3ヶ月以内/コピー可)
・連帯保証人印鑑証明書(審査状況により不要の場合有り)

Q.利用開始までどのくらい期間が必要ですか?
通常審査に1~2日の時間をいただいています。
お急ぎの場合は優先的に審査対応いたしますのでご相談ください。
審査後は契約金の支払いが完了次第利用可能です。

Q.法人登記住所としての利用は可能ですか?
はい。
登記完了後は速やかに登記簿謄本を提出してください。

Q.新規会社設立の場合は個人と法人どちらの申込みになりますか?
最初に個人にてお申込みいただき契約後に法人契約に切り替えます。
 
Q.契約期間はどうなりますか?
契約期間は最低6ヶ月となります。
 
Q.解約の手続きを教えてください。
解約の意志を書面にてご提出ください。
なお契約の終了は解約申入日から3ヶ月後の月末日となります。

Q.初期費用はどれくらいかかりますか?
事務手数料:月額利用料の1ヶ月分
前払清掃費:月額利用料の1ヶ月分
賃貸保証料:月額利用料の1ヶ月分
前払利用料:月額利用料の2~3ヶ月分
※10日以前の賃料起算日の場合/当月+翌月分
※11日以降の賃料起算日の場合/当月+翌月分+翌々月分

Q.契約更新料は必要ですが?
いいえ。
契約後は月額利用料以外に追加費用は発生いたしません。

Q.月々の支払い方法は?
原則口座振替となります。
契約時に前払金として月額利用料を2~3ヶ月分をお支払いいただき、
以後口座振替とさせていただきます。

Q.解約時の費用について教えて下さい。
契約時に前払清掃費を予めお支払いただいているため費用は発生いたしません。
なお故意過失による破損、汚れについては別途請求させて頂く場合があります。

Q.オフィス設備はどのようなものがありますか?
主にインターネットWIFI、プリンター、シュレッダー、会議室等があります。
※拠点により設備状況は異なります。

Q.郵便物は受け取れますか?
はい。
各部屋のメールボックスに投函いたします。
また書留、宅急便については各自にてお受け取りください。

Q.利用時間の制限はありますか?
いいえ。
常時ご利用いただけます。
なお事務所用途のため宿泊目的の利用はできません。

Q.電話回線を引くことはできますか?
はい。
室内への電話線引き込みについては容認しています。
なお電話会社との契約は個別にてご対応ください。

Q.打ち合わせスペースはありますか?
はい。
会議室がございます。
※拠点により設備状況は異なります。

Q.冷暖房はありますか?
はい。
全部屋に空調システムが設置されています。

Q.防音環境について教えてください。
全部屋完全個室のため通常会話程度の音量であれば外に音が漏れることはありません。

Q.契約期間中にオフィスの移動は可能ですか?
はい。
窓無しから窓付きへ、サイズ変更、複数オフィスの借増は柔軟に対応致します。

Q.携帯電話の電波は大丈夫ですか?
各携帯会社の電波は良好ですが位置により電波状態は異なります。
念のため契約の前に各自にてご確認ください。

Q.オフィスの管理はどのようになっていますか?
スタッフによる巡回管理を行っています。

Q.セキュリティはどうなっていますか?
電子錠や各部屋専用の鍵がございます。

Q.駐車場はありますか?
一部の物件にご用意がありますが多くはありません。
近隣の駐車場をご利用ください。

Q.たばこは吸っても大丈夫ですか?
いいえ。
館内共用部及び室内は全て禁煙となります。

お気軽にお問い合わせください。
ワーカーズ倶楽部
03-5577-4067
info@workers-cc.com
内覧時間 平日10時00分~20時00時
※土日祝はご希望に添えない場合があります。
※事前連絡なしの直接訪問はご遠慮ください。
 
【空室待ち受付中】
月額予算/面積/利用人数/入居時期等をお知らせください。
空室が出次第優先的に案内を差し上げます。